Wonderful apartment with high ceilings, French windows and wonderful views of Vitosha Mountain.
Total area: 113.62 sq m. Additional second level of 10 sq m.
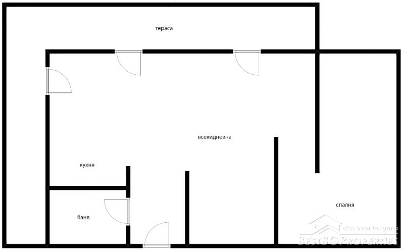
Distribution: The apartment consists of a living room, a bright kitchen box, a bedroom, a dressing room, a bathroom with a toilet, a second level with bedroom / children’s room. Another bedroom could be easily added.
Top location: Manastirski livadi quarter, close to Lidl, the South Park and bus stops.
Advantages:
- Wonderful view over Vitosha Mountain.
- Very functional distribution of the premises.
- Interesting architecture.
- Always fresh air.
- Much natural light.
- Direct views of the sky.
- A huge terrace that you can redistribute.
