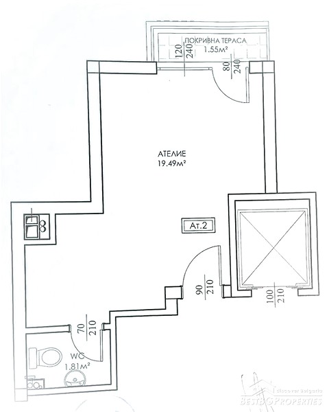
For sale is a modern, stylishly furnished studio, located next to the Vazrazhdane Park in Varna. The studio has a total living area of 30 sq m.
The studio is located on the top, seventh floor, in a new building with an elevator. The building is part of a small gated complex with its own courtyard in a quiet neighborhood. Free parking is possible in the area. There is also a large paid parking in the immediate vicinity. In close vicinity there is a Kaufland and Lidl shops - 600 m (8 min walk). There is a large shopping center is a 12-minute walk away.
The studio consists of one room with kitchen area and sleeping area, a bathroom with WC, a corridor and a balcony with nice views. The apartment is fitted with a sofa bed, TV, air conditioning, microwave, refrigerator, hot water kettle, washing machine and iron. There is video surveillance in the building
Varna Airport, which is 5 km away, can be reached in 12 minutes by car. There is a public transport stop about 350 m away. You can reach the city center in 20 minutes.
