The following property is located in a picturesque area in close vicinity to the sea and the resort of Pomorie.
The house is situated in a small village includes in the municipality of Pomorie, Burgas district. The village lies 9 km from Pomorie and 22 km from Burgas and the International airport. The settlement has good communication links and developed infrastructure.
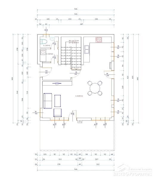
The property is not completed. The house is on rough stage of completion and needs finishing. It can be done upon agreement. The total living area is 166 sq m and the yard is 500 sq m.
The house consists of two floors and the distribution of the premises is as follows: On the first floor there is a dining room with kitchen, bathroom with WC, wet premise and closet. The second floor has 3 bedrooms, two bathrooms, two balconies, verandah and attic premises.
