We are offering to your attention a two-storey house for sale, located in the center of Belitsa town, 18 km from the ski resort of Bansko and the town of Razlog, 14 km from the spa resort of Banya.
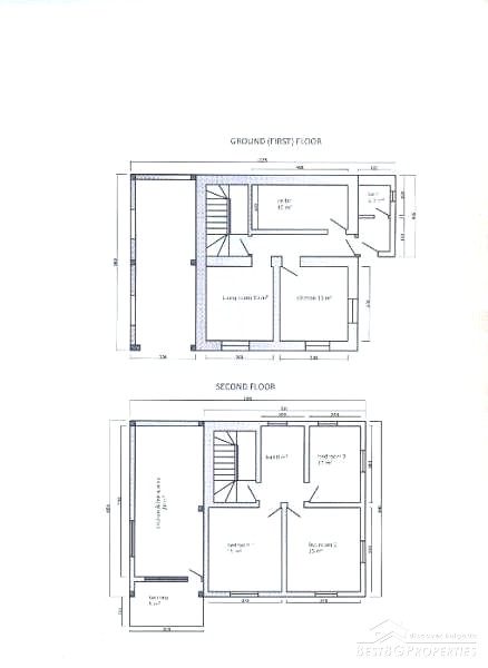
The house consists of two parts: the old part has an area of 76 sq m. The walls on the ground floor are made from stone masonry with a thickness of 50 cm and the roof has wooden beams. This part consists of two rooms - a kitchen and living room, bathroom and cellar. The second floor has 3 bedrooms and a small sitting-room. The newer section of the house was built in 1985. This part has built area of 32 square meters and consists of one room on each floor with. The total living area of the whole house is 208 sq m.
The property is built on a plot of land with size 400 sq m. The parcel is connected to water, electricity and sewer.
The house has easy access to the center of the town.
