We are selling a property (twin house with size 380 sq m and a yard of 897 sq m) in TOP location in Boyana quarter of Sofia.
The house benefits with exceptional location and accessibility. The property can be reached easily in any time of the year. The street is very quiet, 10 minutes from the ideal center of Sofia. There is a public bus stop in a 1-minute walk from the house.
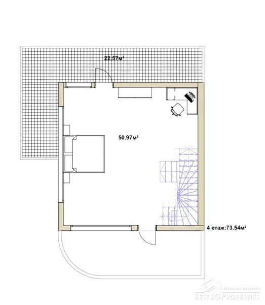
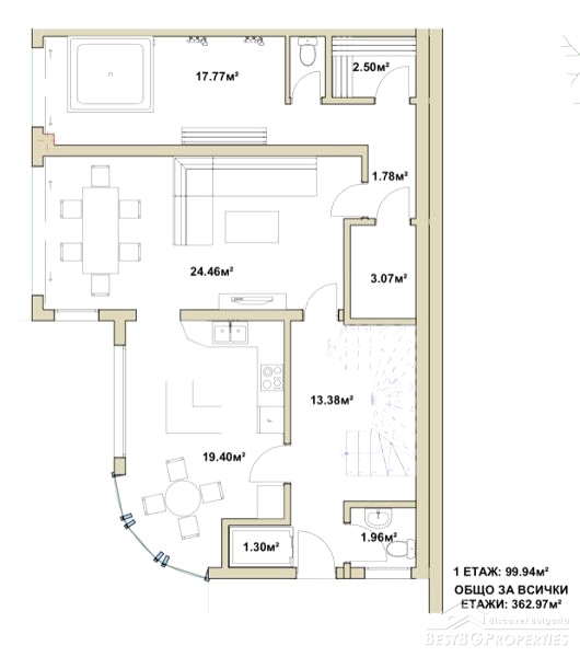
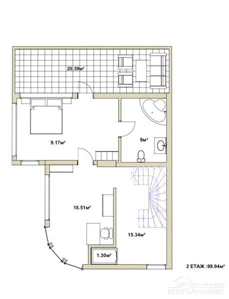
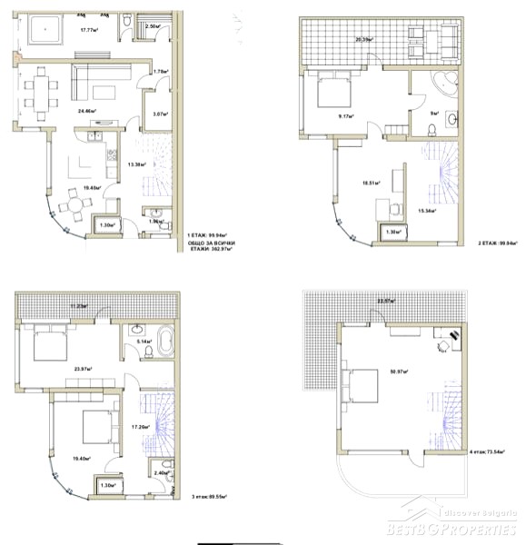
The house has three floors. It was built in year 1985 and needs of repairs. The distribution of the premises inside is the following:
- First floor – living room, dining area with kitchen, toilet, closet and a huge bathroom, staircase.
- Second floor – study, closet, one bedroom, terrace, bathroom, and a staircase.
- Third floor – two bedrooms, bathroom, separate WC, closet, terrace and a staircase.
- Attic floor – one bedroom with two balconies.
The yard is flat. The property is supplied with electricity, water and gas.
