Luxury residential building in the ideal center of Sofia.
Location:
We present to your attention this luxury residential building located in the prestigious center of Sofia. It is situated in a quiet and peaceful place near the Sofia Mathematical High School. Within walking distance, there are schools, kindergartens, banks, pharmacies, shops and sports facilities. Future residents will reach the city center within a short walk. Driving by car is convenient due to the communicative location next to the main streets such as Georgi S. Rakovski Str. and Vasil Levski Blvd. Public transport is well-arranged by buses, trams, in 600 meters from the metro stop.
Architecture:
The building has a unique architectural design, combining suspended facade, structural plaster, French windows and railings. The building is rising on nine floors and has a total built-up area of about 3,500 sq m. The building stands out from with its elegant shapes and unique appearance. The entrance hall features a luxurious designer vision. The underground garages have warm connection to the residential areas. The building characterizes with luxurious performance, functionality and comfort, security, green surroundings and a communicative location.
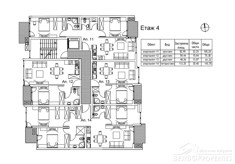
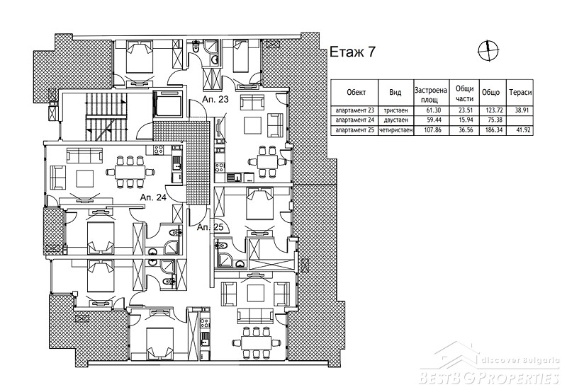
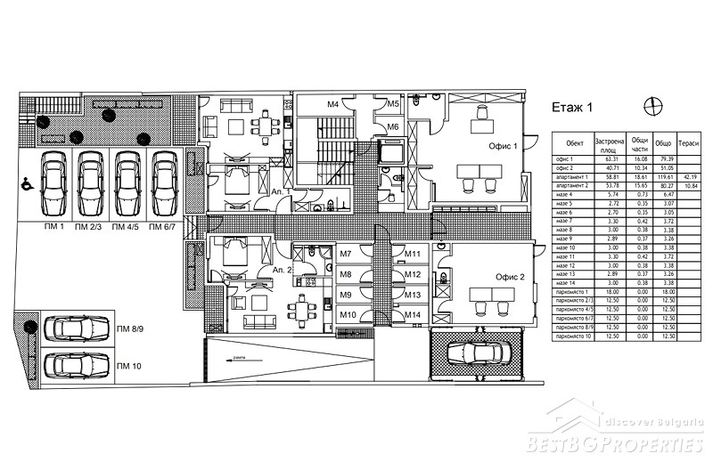
Apartments and garages:
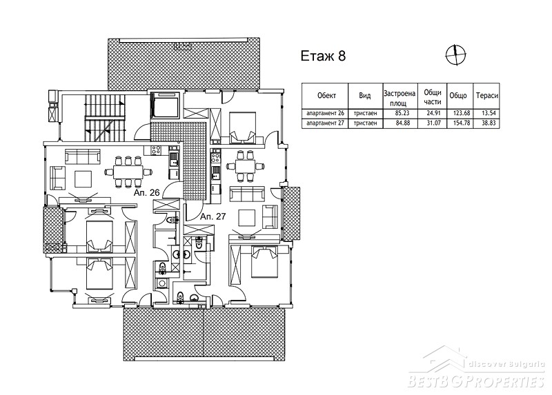
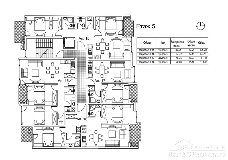
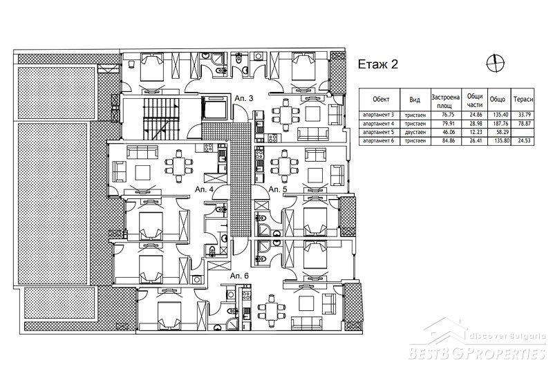
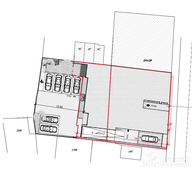
The building has a basement floor with garages, accessed via a car platform. On the first floor, there are apartments with own gardens, offices and parking spaces. The remaining eight floors consists of one-bedroom, three-bedroom and four-bedroom apartments. The top floor apartments benefit with unique views and panoramic terraces. The complex offers functional apartments with a variety of sizes to meet the requirements of the most demanding customers.
Garden and Maintenance:
The future occupants will enjoy professionally arranged green areas behind the building. To ensure the convenience of all residents in the building, a specialized company will provide security access control and will take care of the cleaning of the common areas and the underground garages, maintenance, landscaping and snow cleaning during the winter months.
