This is a new apartment for sale, located in Ovcha Kupel quarter of Sofia city.
The property is situated in a new building with high quality construction. It stands on an asphalted street and has Act 16 since September 2016. The building has an elevator, parking, isolation and luxurious common parts. The apartment is on the second floor out of five.
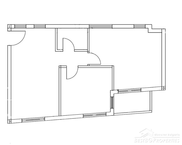
The clean living area is 70 sq m and the total size including the common shares is 86 sq m. The apartment is sold together with a basement with size 3 sq m, a garage – 15 sq m and a parking space – 12 sq m. The whole area of all together is 116 sq m (all included in the price).
The distribution of the premises is the following: two bedrooms, living room with kitchen box and a bathroom with WC. There is also a terrace.
The property is 5 minutes from the NBU - New Bulgarian University and at the same distance from the metro station.
