This is an apartment for sale located in the center of Burgas town, close to a secondary school “Ivan Vazov”.
The property is on the fifth floor out of six, in a new residential building, completed in 2010. The building has Act 16, it is luxury finished with granite staircase, hydraulic lift, spacious and bright common areas. The apartment is three minutes from the super center of Burgas.
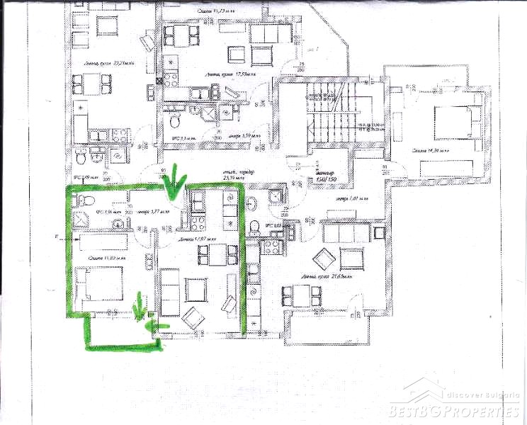
The total living area is 55 square meters - living room with kitchen, one bedroom, bathroom, hallway, and a terrace which is accessible from the living room and the bedroom. The exhibition is southwest. The stage of completion is turnkey - PVC windows, MDF interior doors, armored front door. The apartment is completely finished without furniture. The bathroom equipment is also included in the price.
