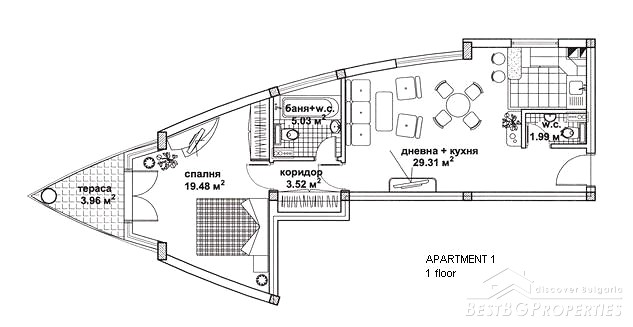
We offer to you several apartments situated in a new constructing residential building in Sofia. The edifice has four storeys and attractive plan. It is not in the center of the city but closer to the Vitosha Mountain and there is a lovely view. The apartments we suggest you are situated on the first, second and fourth floor and all go with cellar. • Apartment 1 – 1 floor,southwest exposure – 76.31 sq.m – 44 260 euro – 30 824 GBP
It consists of one bedroom, living/dining-room with kitchenette, bathroom and toilet, one terrace.
Floorage – 64.79 sq.m-
Common parts – 7.98- sq.m
Cellar 11 – 3.54 sq.m-
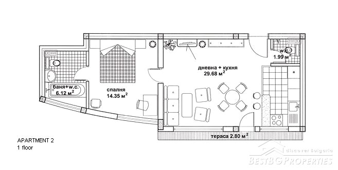
• Apartment 2 – 1 floor, southeast exposure – 65.89 sq.m – 38 216 euro – 26 615 GBP
It consists of one bedroom, living/dining-room with kitchenette, bathroom and toilet, one terrace.
Floorage – 55.64 sq.m-
Common parts – 6.87 sq.m-
Cellar 12 – 3.38 sq.m-
• Apartment 3 – 1 floor, east exposure – 65.69 sq.m – 38 100 euro – 26 534 GBP
It consists of one bedroom, living/dining-room with kitchenette, bathroom and toilet, one terrace.
Floorage – 55.64 sq.m-
Common parts – 6.67- sq.m
Cellar 15 – 3.38 sq.m-
• Apartment 4 – first floor, northwest exposure – 87.87 sq.m – 50 965 euro – 35 493 GBP
It consists of two bedrooms, living/dining-room with kitchenette, bathroom and toilet, one terrace.
Floorage – 75.58 sq.m-
Common parts – 8.75- sq.m
Cellar 16 – 3.54 sq.m-
• Apartment 6 – 2 floor, east exposure – 43.84 sq.m – 27 619 euro – 19 235 GBP
It consists of one living/dining-room with kitchenette, bathroom and toilet, one terrace.
- Floorage – 35.57 sq.m
Common parts – 4.66 sq.m-
Cellar 14 –- 3.61 sq.m
• Apartment 7 – 2 floor, east exposure – 71.62 sq.m – 45 121 euro – 31 424 GBP
It consists of two bedrooms, living/dining-room with kitchenette, bathroom and toilet, two terraces.
Floorage – 60.53- sq.m
Common parts – 7.65 sq.m-
Cellar 14 – 3.44- sq.m
• Apartment 8 – 2 floor, northeast exposure – 103.67 sq.m – 65 312 euro – 45 485 GBP
It consists of two bedrooms, living/dining-room with kitchenette, bathroom and toilet, one terrace.
Floorage – 55.64- sq.m
Common parts – 6.67 sq.m-
Cellar 15 – 3.38- sq.m
• Apartment 15 – 4 floor, 137.82 sq.m – 84 070 euro – 58 549 GBP
It consists of two bedrooms, living/dining-room with kitchenette, two bathroom and toilets, three terraces.
Floorage – 119.58 sq.m-
- Common parts – 14.04 sq.m
Cellar 15 – 3.44 sq.m-
• Apartment 16 – 4 floor, northwest exposure – 103.25 euro – 62 902 GBP
It consists of two bedrooms, living/dining-room with kitchenette, bathroom and toilet, two terraces.
Floorage – 89.34 sq.m-
Common parts –- 10.37 sq.m
Cellar 14 – 3.54 sq.m-
