The complex is located in one of the most famous beach resorts of Bulgaria - Sveti Vlas. This contemporary styled complex opens on 30th July, 2008. It’s situated in the south-western part of Sveti Vlas, just 3 minutes walking distance to the beach and the brand new Marina. It is a quiet area, surrounded by new hotels and private summer villas.
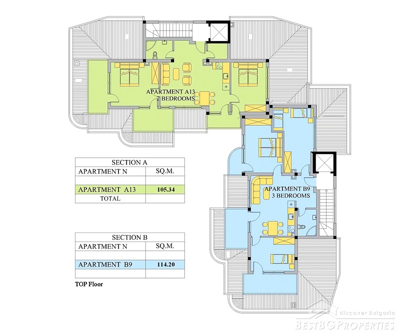
The complex is design as a residential complex with 1-Bedroom and 2-Bedroom apartments from 55 to 115 sq m. Most of the apartments have magnificent sea views. The complex is constructed in 2 sections comprising of 5 levels each.
Construction:
- Reinforced concrete structure.
- Brick masonry on external and interior separation walls.
- External walls with heat insulation and mineral plaster.
- Interior walls with lime plaster and puttying, painted with latex paint.
- Facades 100% completed and executed as per the design with colored facades and stone facing.
- Windows glazing – PVC with double glass-block, acoustic and heat insulating.
- Entrance door – laminated with MDF facing.
- Interior doors – laminated with MDF facing.
- Balconies: completed as per the design, “granitogres” tiles floor, steel railings.
- Water & Sewerage – constructed of ecology friendly polypropylene pipes included in the water & sewerage system with mounted taps and showers in bathrooms, mounted individual water meter for the apartment.
- Electrical installation with mounted individual electrometer lay to switch and socket outlets with mounted standard switches, sockets and lamps.
- Low voltage installation: TV, telephone and Internet cabling.
- Completed ventilation network under the design.
- Floors in kitchen, dining-room and living-room, corridors and bedrooms, made of laminate according to the design.
- All interior walls and ceilings shall be painted with latex paint.
- In living-room and bedrooms – walls and ceilings painted with latex paint; mounted lighting bodies “ceiling lamp” type.
- Bathrooms – entirely completed: granitogres tiles floor; faience tiles on walls; mounted sanitary faience – toilet bowl, shower cubicle, sink; mounted shower and mixing tap; mounted bathroom fan for bathrooms lacking natural ventilation; mounted and connected electrical boiler.
- Kitchenette - walls and ceiling – latex painted; assembled modular kitchen with built-in appliances – air aspirator, ceramic plot, sink with mixing tap; mounted lighting bodies “ceiling lamp” type.
For the Complex:
- Swimming pool for adults with shallow and deep sections – glass mosaic facing, commissioned and with autonomous lighting.
- Regional lighting for the whole complex.
- Completed infrastructure and green area setting for the whole complex.
- All servicing premises: swimming pool, parking places for guests, children’s playground, fence etc. shall be completed according to the approved design.
- Mounted fence surrounding the complex.
- Parking places: laid perforated plates.
- Elevator
Maintenance fee: 12 euro per sq m per year
Optional:
- Furnishing
- Letting packages
Payment Terms:
- Reservation - 1000 euro deposit to secure your apartment for up to 2 weeks
- 30% on Preliminary contract;
- 40% when the building has Act14, but later than 31th March 2008
- 30% on the completion
