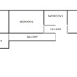
A lovely village house in a perfect condition ready for you and your family to move in right away. It is situated right next to the post office of the village. The living area consists of 2 bedrooms (2 double beds in one of them and 2 single beds in the other), 2 bathrooms (1 inside the house and 1 in the garden) both with showers, a kitchen, a living room and a covered balcony. The house has always been maintained in a good living condition through regular refurbishments. The total living area is 90 sq m.
The garden is divided into functional areas - fruit and vegetable garden, flower garden, vineyard, and a ryegrass area which can be used as a parking for up to 2 cars. There is also a wine-cellar, a barn, a hen-house, and a farmyard. The total garden area is 1000 sq m.
The village surroundings provide multiple choices for relaxation. One of the biggest Bulgarian rivers runs along the village and is perfect for fishing, picnics or just for a walk. Hunting is also widespread. There are lots of lakes and woods in the area as well. All in all, it provides the perfect alternative to life in the big city, and the opportunity to grow your own food is a huge advantage.
Distance to the nearest town (Elhovo): 25 km (15 miles)
Distance to the district centre (Yambol): 62 km (38 miles)
Distance to the seaside (Bourgas): 120 km (75 miles)
Distance to the nearest ski resort (Chepelare): 244 km (152 miles)
Distance to the capital city (Sofia): 334 km (207 miles)
Distance to Istanbul, Turkey: 282 km (175 miles)
