The apartment is located in the beautiful sea resort of Chernomorets in between Bourgas and Sozopol.
Chernomorets is situated on a lovely peninsula, in the bay of Bourgas. The town is located just 23 km south from Bourgas, and 8 km away from the famous ancient old town of Sozopol. It offers plenty of cozy cafes and restaurants for your perfect holiday. Most of them are situated on the seashore and have perfect sea views. The local restaurants offer a variety of show programs, selected drinks, and delicious meals.
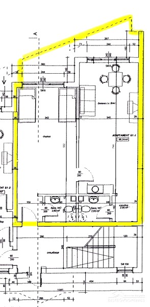
The apartment which is for sale is one-bedroom type and comprises total living area of 82 sq m. The living area is distributed between two rooms - a living room with kitchen box and a bathroom, and also two bathrooms. The apartment is for sale entirely furnished, having air conditioner, TV, in each room, soft furniture, beds and all equipment. The property is situated in a luxury apartment complex on the first line, just 50 meters from the sea.
