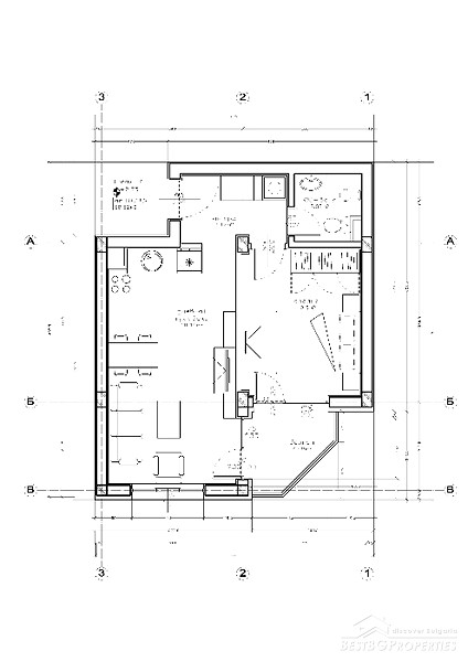
We are offering for sale a one-bedroom apartment, situated on the second floor, with an area of 58.52 sq m and a clean living space of 51.75 sq m. The price also includes an attic of 6.77 sq m and a parking space.
The apartment is furnished, perfectly maintained, everything is working and it is ready for living. It consists of a living room with kitchen box, an entrance hall, a bathroom with a toilet, one bedroom and a balcony. The apartment is internal with a southeast exposure, which means it is warm and bright. The property overlooks the pool of the complex and a pine forest in the distance. There is no shading from nearby buildings.
The apartment is located in a quiet complex, close to Trakia highway. The proximity to the highway allows fast and easy access to Sofia, with no traffic jams.
The complex has a large enclosed landscaped area with playgrounds and children's areas, sports playground, two outdoor swimming pools, a parking lot and shopping facilities, grocery store, café-restaurant, a gym, a hairdresser's salon and SPA center with indoor pool.
The complex is has 24/7 security.
