This unique apartment complex is located right on the beach! Excellent investment! The complex is a unique project and it can not be compared with anything else that is available in Bulgaria.
This wonderful complex is located in the southern part of the town Nessebar on a cape, right on the beach. The area is characterized with the large number of green spaces and places for recreation. The location of the complex provides a secluded and relaxing holiday away from the busy resort areas. Here you can enjoy an incredibly small and clean, golden sand. The complex has a unique architecture, stylish interiors and amazing panorama. The complex consists of four sections - A, B, C and D. All buildings include a wide selection of apartments of different type and area:
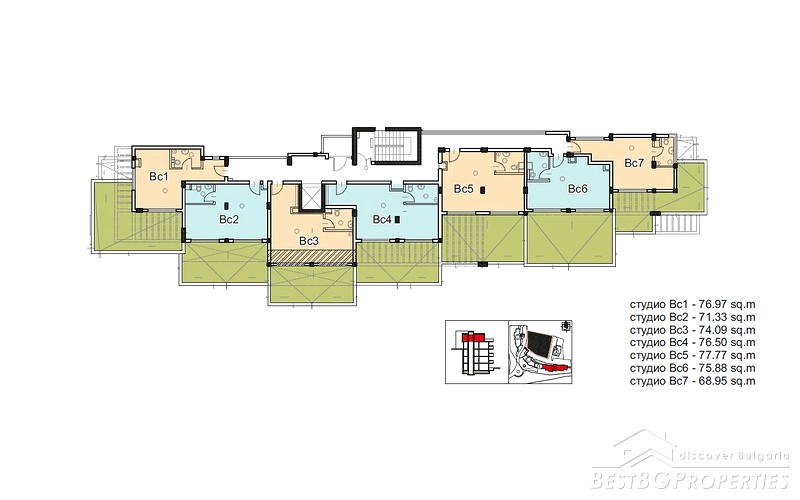
- Apartment type "studio" (37,22-42,76 m 2)
- apartment with 1 bedroom (67.52 - 87.43 m2)
Construction period:
- April 2012 - the beginning;
- 30.09.2012 - Rough construction completed
- 30/07/2013 - building completed
Interior:
Apartments will be comfortably furnished. Degree of completion - on key, as follows:
- an air conditioner;
- Walls - plaster and latex paint;
- flooring - laminate;
- doors - MDF;
- windows - PVC;
- bathroom: the floors are covered with tiles, sink, toilet, water heater.
Annual maintenance fee is 8 EUR / sq m of the living area of the apartment, along with the common areas, without VAT.
Location:
- on the first line on the sea
- at a distance of only 1 km. from the charming old town of Nessebar which is in the list of UNESCO World Heritage Sites
- at a distance of 2 km. from Sunny Beach resort with all amenities
- a 20 minute drive Burgas Airport
