The following property is situated right in a pine forest, close to the lift and the monastery in Sopot.
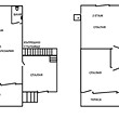
The villa is accessible by a paved road. It is surrounded with a high, solid fence. There is electricity, water and sewerage. The house is in great condition, renovated. It comprises with two floors - 50 sq m each.
First floor - large living room with dining area and a small room with an internal staircase.
Second floor - three bedrooms (two south facing and one north facing). This floor reveals amazing panoramic views of the Stara Planina Mountain and Sredna Gora. There is also a large south facing terrace.
The total size of the plot is 500 sq m. In the yard, there are many fruit trees and a lot of young vines.
This property can be easily used as an investment (guesthouse) due to its amazing location.
