Skip to main content

Seaside Golf Villas Project for Sale Near Kavarna

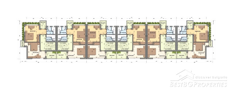
An attractive holiday property located in close proximity to two of the most perspective golf locations on the Northern Black Sea. It consists of two available courtyards set on a main street in the holiday area of the village of Topola situated on the panoramic plateau over the coast between the towns of Kavarna and Balchik. For the plots there had been prepared common investment project compiled by a notional architectural project in conformity to the parameters of constructing and the general outlook of the buildings in the region as well as the market search of holiday properties in the sea golf destinations in the next five years. The project consists of architectural plans of a three storey structure that consists of six individual villas suitable for all round the year use, but envisaged mainly for temporary use and renting during the active golf season. Each villa has its own yard converted into a garden and a parking space that can be accessed from the street, recreation area and barbecue place in the quiet part of the property. On the first floor there are entrée, service premise, and storage under the stairways, living room and dining room with a kitchen functionally prolonged with a summer green veranda. The second level is envisaged for recreation and rest as the main bedroom has en suite bathroom and a terrace while the second bedroom is for guests and can be accessed from the entrée on the storey. The mansard features relax area with spacious panoramic terraces and consists of living room connected to a private Jacuzzi bar that can be used as an atelier, study room or a second bedroom for guests. The structure features East and West orientation providing sunshine to all residential premises a affording a magnificent sea view from both directions. Greening is envisaged mainly with exotic plants and trees out of the area of the individual courtyards. The frontages of the structure are made of natural materials in light tinges with architecture is of modern Mediterranean style and decorative elements as the pergolas of the yard greening, the flower pots in front of the terraces and the impressive panoramic windows underline the concept of the project - individuality in details expressed in high standard of living, guaranteed with the execution of the investment project.
Parameters:
1. Area of the property - 968 sq.m.
2. No. Of Storeys - two and a mansard
3. Coefficient of intensity - 0,8
4. Green yard area - 580 sq.m.
5. Density of construction - 388 sq.m.
6. Number of independent units under project - 6
7. Total price of the property and the project - EUR 88 000
8. Average built up unit area - 144 sq.m.
9. Projected unfolded built up area - 863 sq.m.
10. Average prime cost of square meter - EUR 102
11. Forecast of a unit sale price - EUR 172 000
12. Expected profit - 4 finished units /EUR 680 000


ID: 4354
Property Status:  Sold
District:  Kavarna
Price Euro
46,000, €43,000
Price GBP:  £37,496
Price USD:  $47,997
Category:  Investment Projects
Area :  2 Floors
Plot Size :  100m 2
Extras:  Electricity, Water
Location:  In beach resort, Near beach resort, Near the sea, Near golf course, In the countryside, In vacation place
Published:  Monday, March 27, 2017
 

Contact us in regards to this property

 
 

 
 

SIMILAR PROPERTIES

 
 

Bulgarian Property News

Bulgaria's Sandanski Welcomes Over 10 000 Foreign Tourists For Easter 30/04/2008
The mountain resort town of Sandanski in Southwest Bulgaria is welcoming over 10 000 foreign tourists for the Easter holidays, the Bulgarian private Darik Radio reported. "Our foreign guests are primarily from Russia, Ireland, and Greece", the Mayor of Sandanski Anton Totev announced. Apart... more
 
Bulgaria gives up the restrictions on foreigners when buying land 15/07/2017
The requirement for five years of settlement is contrary to European legislation, which is why the EC has started a criminal procedure. Managers refuse to restrict the restrictions on foreigners in the purchase of agricultural land in Bulgaria, as published in the public discussion proposals for... more