House of new construction, finished in 2019. The building is modern, built with high quality materials. Its total living area is 165 sq m. The size of the plot is 780 sq m. The property is located in a village, 3 km south from the ring road of Sofia.
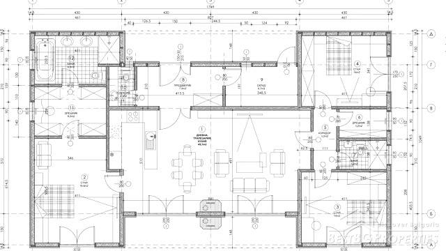
The property consists of the following: an entrance hall, which leads to storage room / boiler room with a washing machine and a dryer, guest toilet; kitchen with kitchen island, dining room; large bedroom with a closet and a bathroom; two more rooms, with a shared closet and a bathroom; attic space of 35 sq m.
The finishing meets the Bulgarian standards – plaster and putty. The house is ready for final finishing and furnishing according to the wishes of the new owners.
There are 2 parking spaces in the yard. The property has year-round access via an asphalt street.
The location is attractive, close to the city, but at the same time in a quiet and green place.
