House for sale located in a closed-type complex, consisting of four houses built on a plot of 1468 sq m. The property is 10 km from Sofia, situated on the southern slope of Stara Planina Mountain, overlooking Vitosha Mountain.
The house has Act 14 and total living area of 164 sq m. The built area is 82 sq m. There is electricity and water.
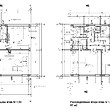
Distribution:
First floor - entrance hall, living room with fireplace, kitchen, dining room, guest room, bathroom and toilet, service room.
Second floor - master bedroom with bathroom and toilet, large children's room (for two children), second children’s room, bathroom and WC, laundry room.
Along the southern side of the house, there is a veranda of 20 sq m with access from the living room.
The house is made of high quality materials - Wienerberger bricks, Bramak roof (with built-in solar collectors), German SALAMANDER joinery (from SAAB), heating with a German Viessmann thermal pump, etc.
The house needs finishing.
