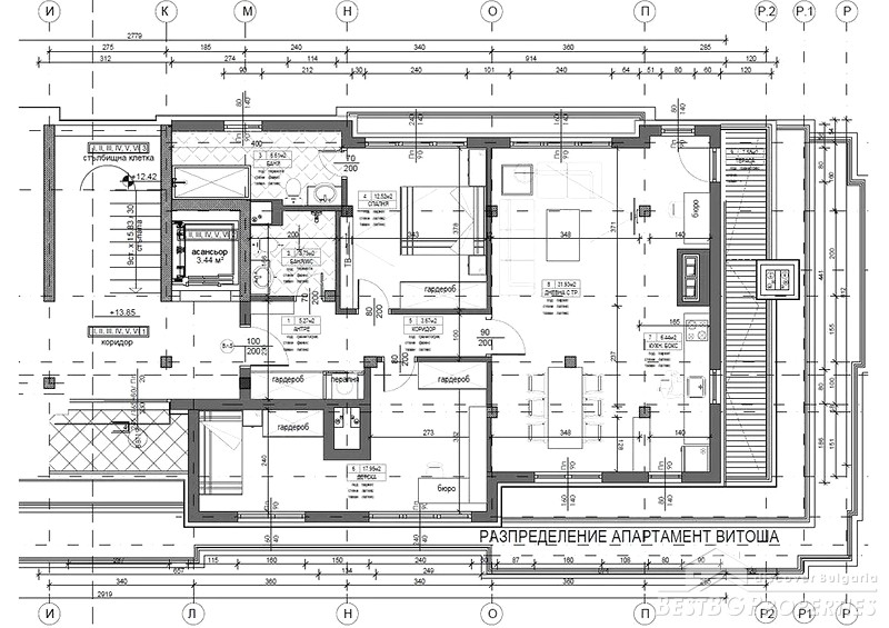
Spacious and light, two-bedroom apartment (possible conversion into a 3-bedroom) located in Vitosha district of Sofia. The apartment is situated within walking distance of Simeonovsko Shosse Blvd. and G.M. Dimitrov.
The total living area is 138 sq m and this includes ideal parts of the land. The distribution inside is very functional: a corridor with a separate place for a large wardrobe, a bathroom with toilet, a master bedroom with large bathroom and toilet and a bathtub, a children's room, a spacious living room with dining and kitchen area with option for fireplace and a terrace.
The apartment is on the sixth floor (last) in a new building finished in 2016. The building has Act 16 and video surveillance, access control. The common parts of the building are luxuriously finished with granite tiles.
There is an opportunity to purchase a parking space.
