This is an old house in need of renovation built on two levels located in northern Bulgaria, near Ruse.
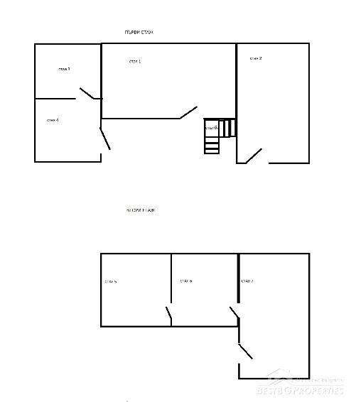
The house has total living area of 100 sq m and offers the following layout of the premises inside: On the first floor there is one room finished with stone and with concrete floor. The second room is brick finished, situated in the adjacent structure. There are two more rooms in another adjacent building which are meant to be used as a bathroom and WC. The second floor has three rooms with wooden floors.
The total living area of the house is around 90 – 100 sq m. The house is solid, with no cracks or anything. It has very beautiful view, due to its location – in the highest part of the village. It stands on an asphalted road. There is water and electricity inside the property. The yard is 1950 sq m.
The location is 46 km south from Ruse. The property is situated in the ideal place for a holiday home-far from the big city. The village is nice and clean.
