Pay attention to our next offer! This a luxurious, brand new house for sale located in one of the most prestigious quarters of Sofia – Simeonovo.
The house is located on an asphalt street in the lower part of Simeonovo. It finished in 2015 and has 10 cm insulation Baumit with 15 years guarantee, window joineries – TYSSEN, triple glass, quality floor covers and sanitary equipment.
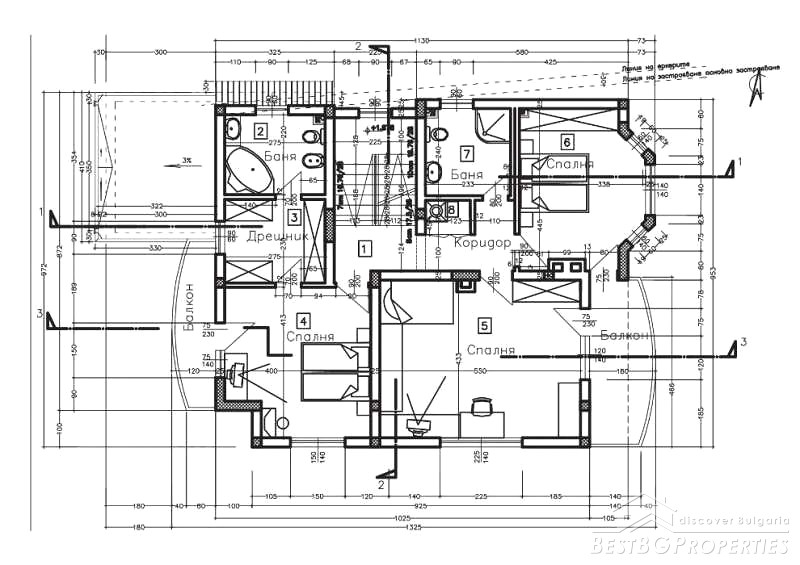
The house has three floors with the following distribution: First floor - cabinet, hallway, dining room, kitchen, toilet and garage. It benefits with granite floors and water underfloor heating. The second floor consists of three bedrooms, two bathrooms, one of which is a master bedroom with dressing room and bathroom with bathtub. The third floor is on rough construction and consists of one whole open space.
The building will soon have Act 16. It is connected to three-phase electricity and water. Gas can be easily connected. The property has year-round access. The total living area is 420 sq m and the size of the yard is 850 sq m. The yard is flat, with garage and parking space.
