Location
This residential complex is located in the fastest developing municipality of the region of Plovdiv, in direction Sofia. It is expected to become a part of the city of Plovdiv in the coming future. It is close to main roads - 6 km away from the centre of Plovdiv and 100 km away from Sofia Airport. towards
It is situated at the foot of the Rhodope Mountain, famous for its excellent climate and beautiful nature in the middle of the country, surrounded by ancient historical and archaeological sites.
The project
The project started with the idea to create a residential area with beauty and harmony in a natural environment. It’s situated on 100 000 m2 land with the goal to build 68 family houses on the first 75 000 m2 and common green spaces on 15 000 m2.
The project has modern infrastructure, which includes gasification, wide roads, modern street lighting, and beautiful green areas.
We provide central maintenance services, security and gardening.
The houses
The houses are distinguished for modern and functional architecture with spacious premises that provide lots of options for individual interior design.
The construction work features top quality and innovative building materials like high-quality insulation systemmade of natural materials – cotton, wool, duck feathers and hemp, which is used for the first time in Bulgaria. It is build with Austrian thermal insulated ceramic cell-bricks and all this will decrease the costs for heating and cooling to minimum.
The residents become owners of the land plot on which their house has been built and they can sell, inherit, mortgage it, or they can change the status of the house and use it for business.
Every house has its own garden with an option for a swimming pool to be built, private garages or parking lots.
Why here
- Profitable investment characterized by a steady continuous rise in the price of properties with good location, nice environment, high quality and facilities.
- Luxury lifestyle that provides image, coziness, amenities and security.
Building stage
The infrastructure construction began in April 2007 and was finished in April 2008.
The first four houses are completed and their residents are ready to move in. The building of the next 22 houses began in March 2008 with completion date March 2009.
In the end of 2008, the next stage of the building of the remaining houses will begin.
Reservation fee: 2000 Euros for 45 days
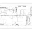
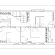
Types of villas:
- New Bulgarian style - 220 sq m
- Bulgarian style - 220 sq m
- Tuscany - 200 sq m
- Small semidetached - 123.20 sq m
- Big semidetached - 185.2 sq m
- Big house - 198.69 sq m
- Middle - 150.87 sq m
Prices:
The different types of houses will cost you 850 euros per sq m.
For example a house in New Bulgarian style will cost you 187 000 Euro.
Apart from the house price you can select a building plot in the complex that varies from 302 to 1702 sq m. The price of the plot is 45 euro per sq m.
So a property with house in New Bulgarian style and a plot of 691 sq m will come to 218 095 Euro.
There are 24 available cobinations. Do not hesitate to contact us for further details.
