We offer you a plot of land that goes with an investment project for a holiday complex. The land is 2000 sq m located in the town of Razlog 10 km far from Bansko near the main road reaching it. The plot is regulated included in the new urbanization plan of Razlog. It boarders the new asphalt road leading to the Golf Course of Ian Woosnam.
The property includes a development plan, sketches and building permission.
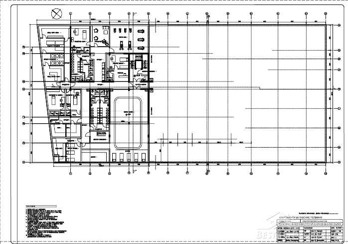
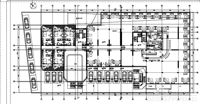
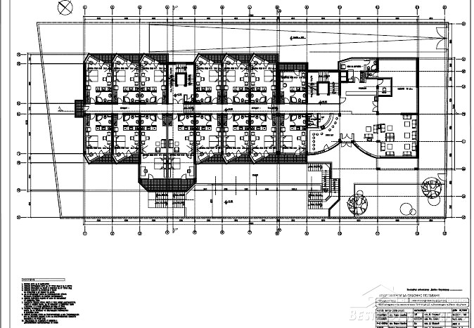
The plot has plans passed for a 11 800 sq m development of apartments including spa facilities, sauna, massage room, Jacuzzi, swimming pool, beauty saloon, laundry, fitness, restaurants and large conferencing areas. There is a parking lot too.
The complex is nine storey with studios, one- and two bedroom apartments.
