Take a look at our next offer!
It is a residential complex located in the ‘Budzaka' area in the town of Sozopol, 60 m away from the seashore. Sozopol is 34 km away from the city of Burgas and the International Airport, 161 km from Varna, 69 km from the popular resort of Sunny Beach and 436 km from our capital Sofia.
The complex itself has very attractive location as it is just above a charming beach. The natural displacement of the terrain gives each apartment a fantastic sea view. The development is easily reached by foot from downtown, at the same time provides the tranquility of nature thus making it a wonderful place for family vacations.
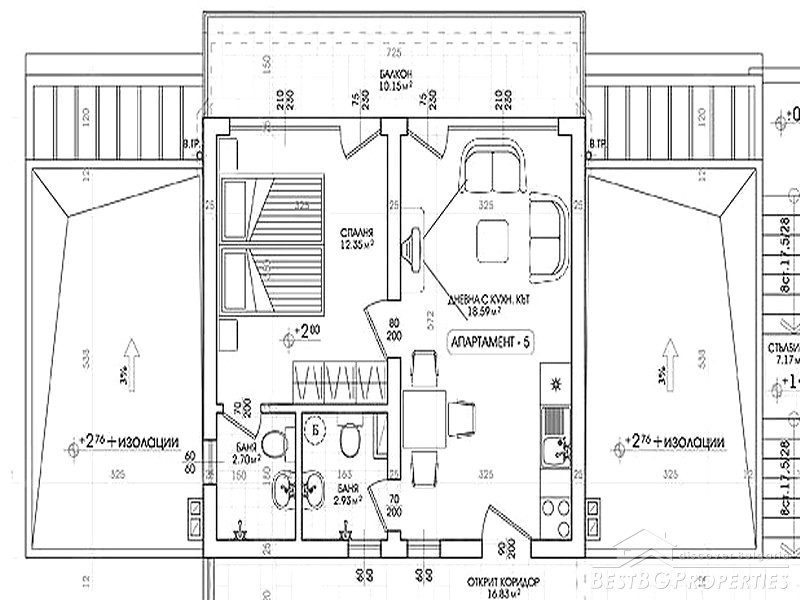
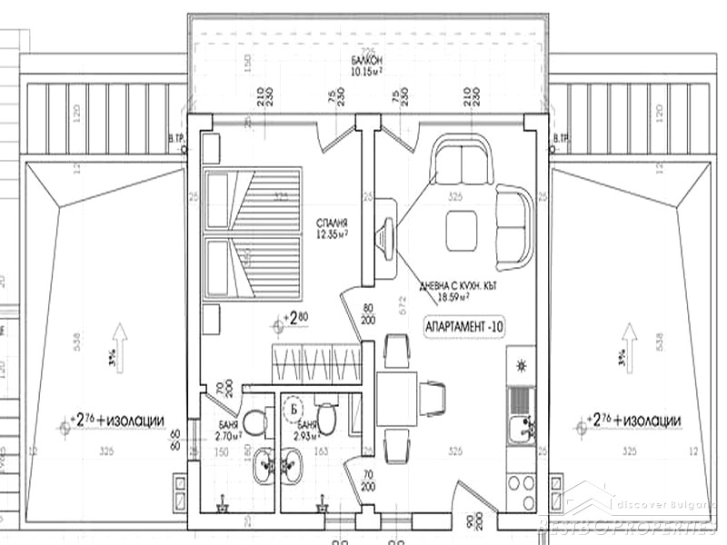
The complex consists of two identical separate buildings-villa ‘Azure' and villa ‘Breeze'. Each villa has three floors and includes five apartments. The buildings are designed in a way to provide their occupants a top sea view and seclusion. Each apartment in the two villas contains living room with kitchen area, bedroom, entrance hall and bathroom with WC.
Stage of completion of the apartments:
-Living room with kitchen area: flooring-granite-grease terracotta tiles, walls and ceilings-latex paint, electrical installation- installed switches, illuminators, kitchen area-kitchen cupboards, stove, fridge;
-Bedroom: flooring-laminate, walls and ceilings-latex paint, electrical installation-installed switches, illuminators;
-Entrance hall: flooring-granite-grease tiles, walls and ceilings-latex paint, electrical installation- installed switches;
-Bathroom with WC: flooring-terracotta tiles, walls-faience, installed boiler panel, fan, installed water-meter, sink, shower battery, lavatory pan, flushing cistern, boiler, bath accessories, electrical installation- installed switches, illuminators;
-Balcony: flooring-granite-grease tiles, parapets-metal;
-Windows: High-quality PVC windows;
-Entrance doors: metal;
-Interior doors: aluminum with wood-colored cover;
-Air conditioner: two in each apartment (one in a room);
Facilities in the complex:
-A swimming pool with a children part;
-A children's area;
-A metal fence;
-Completed pavement;
-Parking places;
-Installed yard illumination with an automatic machine;
-Rich greenery;
-Security system;
Near the complex there are restaurants, entertainment places, sport facilities.
Payment plan:
1000 EUR Deposit;
40%-when signing the preliminary contract;
50%-by agreement, in several installments (which can be bounded to stage of construction or fixed dates);
10%-when performing the formalities relating to a sale and the Notary Deed;
Maintenance fee: 8 EUR/sq m per year!!
Date of completion: 30.11.2008!!
Do not hesitate to take advantage of this great opportunity for investment! It is right for you!!!
