We are offering you for sale this new two-story house with luxury furniture and equipment located near the resort of St. Constantine and Elena
Location:
Offered for sale fully ready to move in, luxury furnished house, located in the city of Varna, close to the former royal residence Evksinograd, just 500 meters from the resort of St. Constantine and Elena, and in close proximity to the botanical garden. The perfect location of the house provides a quick and easy access to the city infrastructure, beaches and mineral springs in the resort of St. Constantine and Elena. In the summer season there are also great opportunities to enjoy the beaches Kabakum and Golden Sands.
Description:
On a plot of land with size 995 sq m are built two houses with a common swimming pool and a barbeque. The houses are two-storied and have built-up area of 260 sq m each.
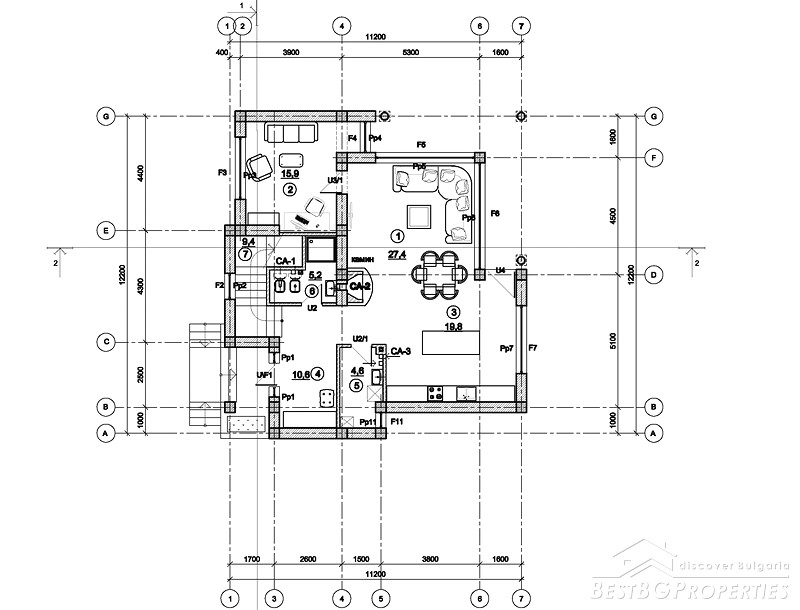
Ground floor: entrance / 10.60 m /, a spacious living room with dining room and kitchen / 47.20 sqm / bathroom with toilet / 5.2 m / study / 15.90 sq m /
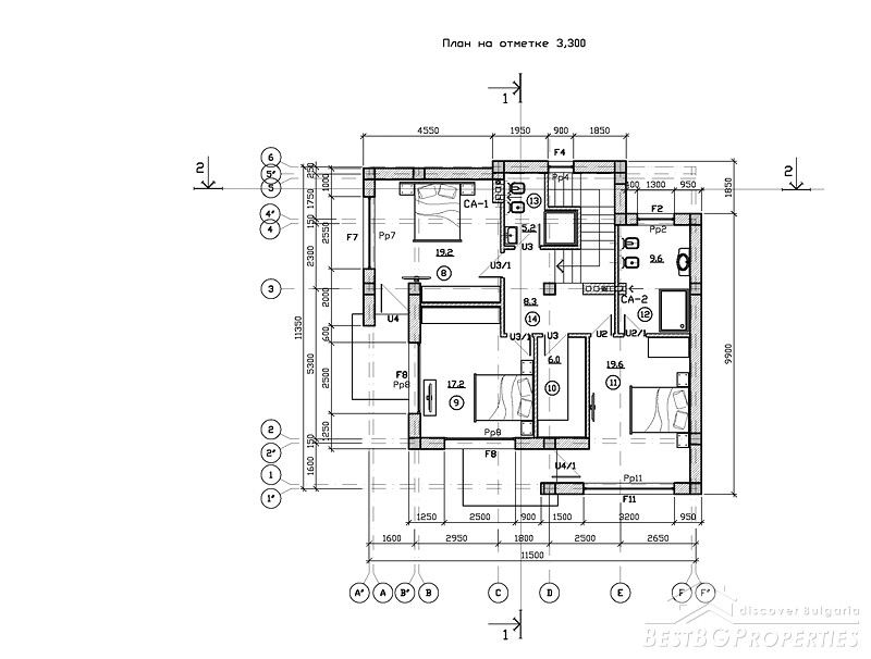
Second floor: three bedrooms / 19.60, 17.20 and 19.20 m / dressing / 6 m / toilet / 5.20 m / and a large bathroom with a toilet / 9.60 m /
The house offered fully furnished with new appliances.
During the construction have been used high quality building materials - bricks "Veneberger" 38 cm, German window profiles KBE, the walls are decorated with natural stone, marble and travertine. There is local heating with radiators.
Accents:
- New Construction
- Luxurious furnishings and first-class equipment
- High-quality construction
- Next to the resort of St. Constantine and Elena
- Swimming pool and barbecue in the yard
