We present to your attention this amazing, monolithic, wooden house for sale, situated in a beautiful sea village, just 20 km from Kavarna.
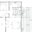
The building was finished in 2008. It is on two floors with area 95 sq m and a garden of 890 sq m. it is located in one of the best preserved and most beautiful areas on the Black Sea, near the nature reserve "Yailata".
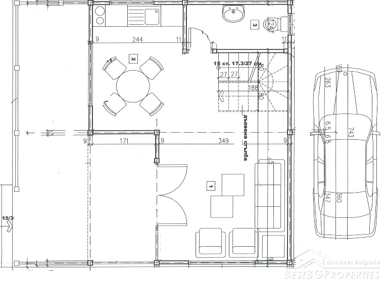
The villa has concrete foundations, insulated roof, double glazed PVC windows, plumbing and electrical installations. The house is not entirely completed and requires inside finishing (sanitary premises and staircase).
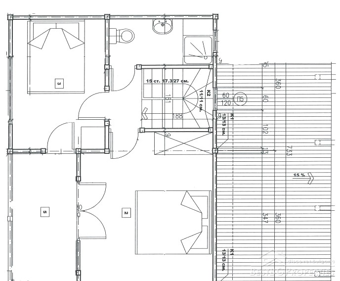
The distribution is as follows: first floor - living room, kitchen with dining area and bathroom, spacious terrace - 23 square meters, oriented towards the coast and the sea. Second floor - two bedrooms (large and small) opening onto the terrace with sea view, bathroom.
