This is a residential building with apartments for sale, located in the famous balneological resort of Sandanski.
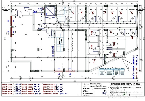
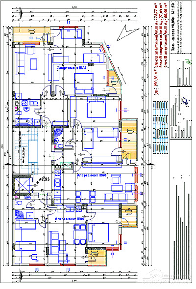
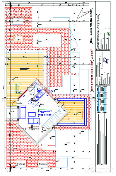
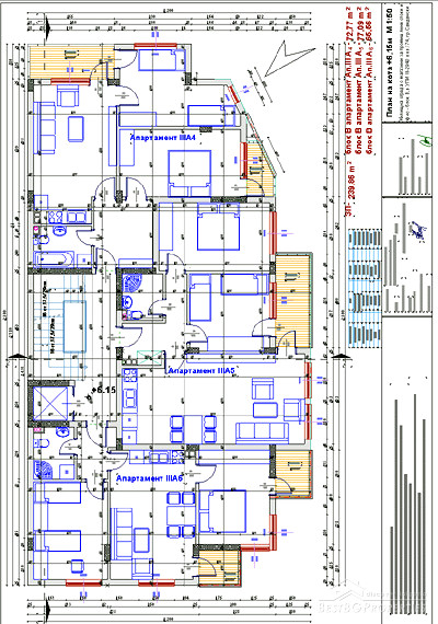
The building is still in the process of construction. It consists of 4 sections. The building consists of studio apartments, one bedroom and two bedroom apartments. There are also few shops. Some of the apartments come with a basement included in the price. Each apartment has a balcony with wonderful view. The building comprises 7 residential floors and is situated in the beginning of the town of Sandanski in one of the first neighborhoods. There is also an elevator in each section and parking spaces. The sections are finished with mineral plastering and thermal isolation, PVC window joinery. The facade is made out of brick and concrete.
Few words about Sandanski. Situated at an altitude of 224 m in the valley of the Sandanska Bistritsa River, at the foot of the magnificent South-western slopes of Pirin Mountain, the town of Sandanski is famous for the beauty of its scenery and a wealth of resources for spa and climatic treatment. This is the warmest and sunniest town in Bulgaria with the least temperature variations throughout the year. Without exaggeration the climate of Sandanski can be described as unique. Throughout the year, air temperatures are higher than anywhere else in the country.
