Pay attention to our next amazing offer! This is a lovely one-bedroom apartment for sale located on the first line of Chernomorets sea resort in Bulgaria.
Chernomorests is a summer resort situated in the southern part of the Black Sea coast, 23 km south of Bourgas and 8 km north of the ancient Sozopol. There are four beaches there, there are conditions for many water sports - jet skiing, water jumping and scuba diving. Chernomorets is a very cozy town, all of the restaurants and pubs are located at the sea coast. There is plenty of entertainment offered in the local taverns and night clubs.
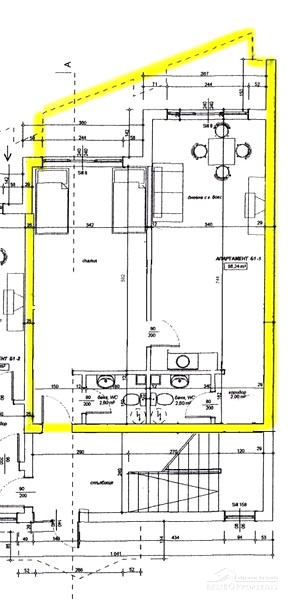
The apartment consists of two separate one-roomed apartments joined together and forming one whole one-bedroom apartment. The property comprises two rooms, two bathrooms two entrances from the outside patio and entrance from the inner part of the complex. The apartment is for sale completely finished and furnished. It has air conditioner, fridge and TV in every room so the rooms can be used both separately. Together the whole apartment comprises total living area of 82 sq m. It is situated in a well maintained complex on the first line just 50 meters away from the beach.
